Mairie de Sainte Hélène du Lac

  • Programme : Réorganisation des locaux de la mairie – agrandissement et mise aux normes / Création d’un logement locatif à l’étage
  • Localisation : Sainte-hélène-du-lac (73)
  • Maître d’ouvrage : Commune de Sainte-hélène-du-lac
  • Architectes : NAUD-PASSAJON ARCHITECTE (mandataire) / APOPSIS ARCHITECTES – (Architecte associé)
  • Maître d’œuvre (équipe) : TEC’LM – Economie et OPC / BET Fontaine – BE structure / ADF – BE Fluide
  • Montant des travaux : 678 000 € HT
  • Surface : 450 m²
  • Durée des travaux : 14 mois
  • Missions : Mission de base + EXE + OPC
  • État : livré
  • Année de réalisation : 2016
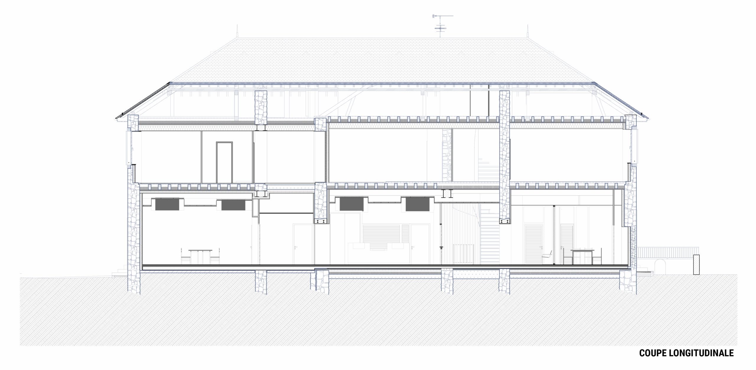
Le projet porte sur la rénovation du bâtiment Mairie – École de la commune de Sainte-Hélène-du-Lac, située dans le chef-lieu de la commune. Il vise à moderniser les infrastructures tout en respectant leur histoire et leur environnement.
Le projet prévoit la réhabilitation du bâtiment pour le rendre accessible aux personnes à mobilité réduite et pour améliorer son efficacité énergétique conformément à la réglementation RT 2007. De plus, avec le déménagement de l’école vers un nouveau bâtiment, de l’espace a été libéré pour agrandir et réaménager les locaux de la mairie, ainsi que pour créer un logement locatif à l’étage. L’accès au site est repensé pour inclure des places de stationnement PMR, des stationnements pour les logements et des racks à vélos. La rénovation comprend également la création de nouvelles rampes et escaliers pour l’accessibilité, ainsi que des ajustements dans les abords du bâtiment. Les façades et la toiture sont préservées autant que possible, avec des rénovations mineures pour améliorer l’efficacité énergétique et l’accessibilité.
X