Savoie Hexapole

  • Programme : construction d’un centre de vie sur le site de Savoie Hexapole à MERY
  • Localisation : MERY (73)
  • Maître d’ouvrage : Commune de MERY
  • Architectes : NAUD PASSAJON ARCHITECTE (mandataire), DEJOS JEAN-PAUL (architecte associé)
  • Maître d’œuvre (équipe) : SCP ECO TECH (Chambéry) – BE Economie / Ingexco EURL (Montmélian) – BE structure béton / ADF Agence des Fluides (Cognin) – BE Fluides / SITETUDES (Challes les Eaux) – BE VRD / EURL ALLIMANT PAYSAGES (Aix-les-Bains) – BE Paysages
  • Montant des travaux : 3 200 000 € HT
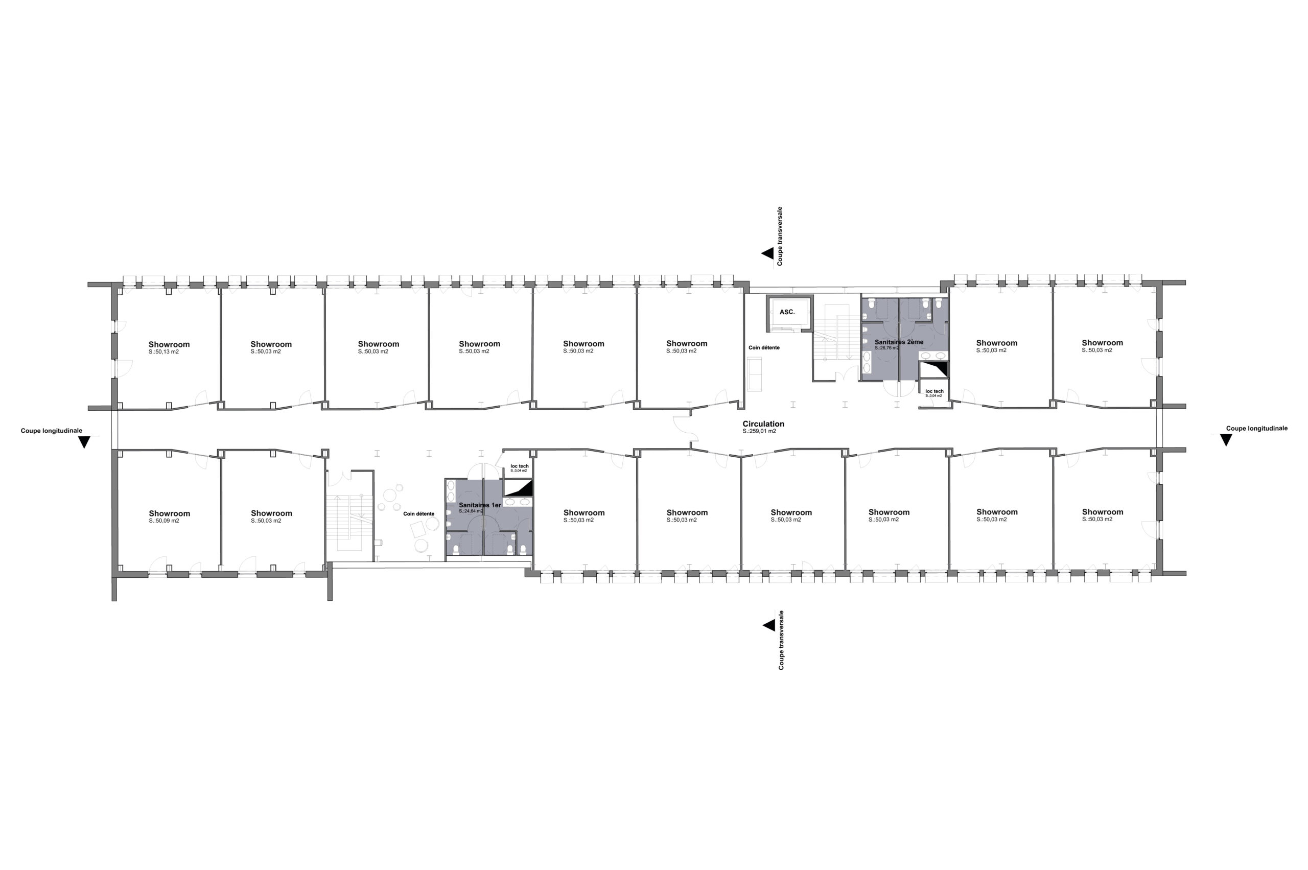
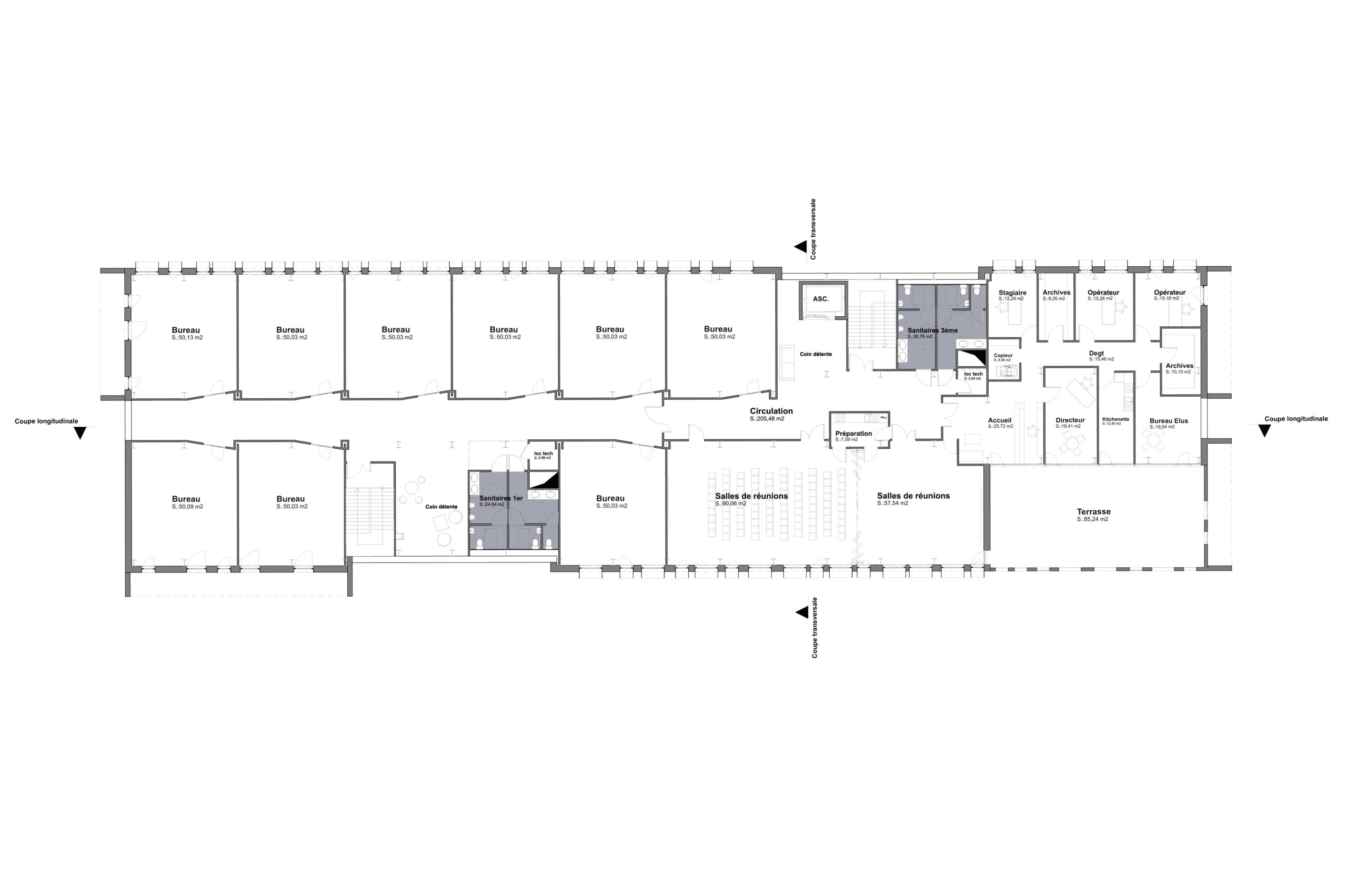
  • Surface : 3 200m² de surface utile
  • État : Concours perdu
Le projet se propose de s’inscrire dans 4 attitudes : Faire du bassin d’orage le vecteur reliant le Tillet à la rue Louis Armand par un aménagement de qualité, développer un bâtiment en limite de cet espace, tenant compte de la nature du terrain et permettant de constituer une identité forte, à l’image des objectifs du parc, développer une organisation en peigne, parallèlement à la rue Maurice Herzog, afin d’avoir un découpage parcellaire optimum et la possibilité de faire remonter la ripisylve du Tillet au cœur de la parcelle. Inscrire une continuité piétonne Nord-sud, permettant de trouver une connexion avec la Genestière et la zone de développement au Nord.
La communication du parc Hexapôle s’oriente aujourd’hui vers les concepts d’ »écoparc » et d’ »Outdoor Valley ». C’est à travers ce double angle d’attaque que le projet a été conçu. Un parti architectural cohérent, fort, et position nant clairement le parc dans cette orientation stratégique. Il s’agit ici d’un acte volontariste, revendicatif, militant. Ainsi, les pieux nécessaires aux fondations spéciales se prolongent au rez de chaussée, mettant les 3 niveaux su périeurs sur pilotis ; les façades des équipements du rez de chaussée se tiennent en retrait, discrètes, afin de respecter la lisibilité de ce parti. Au dessus, les bureaux et showrooms se déploient dans une recherche constante d’économie de surfaces. Le volume ainsi produit, une simple barre, reste donc très rationnel, limitant décrochés ou arrondis jugés trop onéreux au regard de la volonté d’économies. Partant de là, le travail sur les façades devient prépondérant, afin d’éviter une austérité antinomique avec le positionnement identitaire du bâtiment.
X